相關標簽:
充砂型電氣設備的防爆原理是將能點燃爆炸性氣體的部件固定在適當位置上,且完全埋入填充材料中,以防止點燃外部爆炸性氣體環境。這種防爆型式不能阻止爆炸性氣體進入設備和Ex元件而被點燃,而是依靠填充材料中空隙小,且火焰通過填充材料中的通路時被熄滅,從而防止外部爆炸。因此標準GB/T 3836.7—2017對充砂型“q”填充材料內的距離做了如下規定:
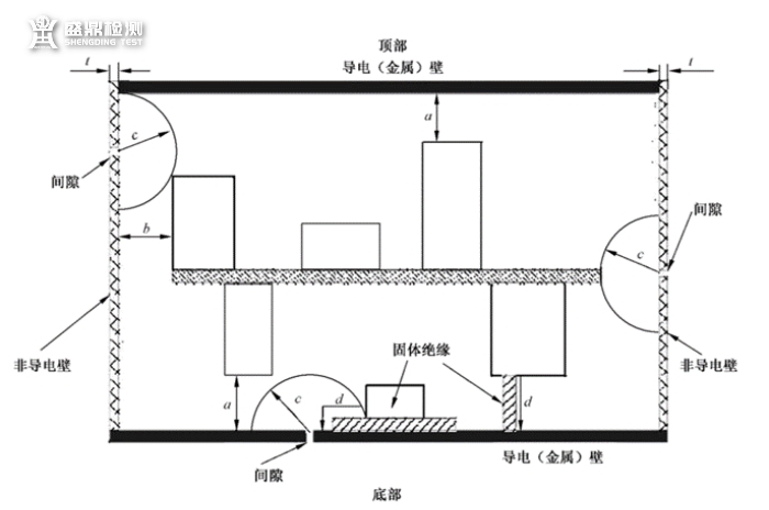
充砂型“q”保護的設備內導電部件與箱體內表面之間通過填充材料的最短距離需符合GB/T 3836.7—2017中表1和圖1的規定:

對表1的內容需要做以下幾點說明:
(1) 工作電壓可高于表中電壓乘以1.1的系數,也就是說工作電壓如果是表中電壓的1.1倍以內,那么要求值可以按照表中電壓去規定,否則就得按照更高電壓等級去要求;
(2) 為了確保填充材料內有足夠的路徑長度,能夠熄滅從箱體內部向外部傳播的火焰,僅在箱體內沒有相鄰的間隙,不會使火焰傳出箱體時,才允許采用表中的縮小距離,結合GB/T 3836.7—2017圖1加以說明,圖1中:

a—距導電壁的距離,符合表1規定,允許采用縮小距離;b—距厚度為t的非導電壁的距離,b≥表1規定的距離-t;c—距間隙的距離,最小半徑符合表1規定的最小距離,不允許采用縮小距離。(3) 在確定工作電壓時應考慮4.8規定的故障條件。
注:充砂型“q”保護的設備適用的額定電壓應不超過1140V,表1考慮了設備或Ex元件內部可能產生高于1140V的工作電壓。
參考內容:GB/T 3836.7—2017 《爆炸性環境? 第7部分:由充砂型“q”保護的設備》
相關標簽:
